Description
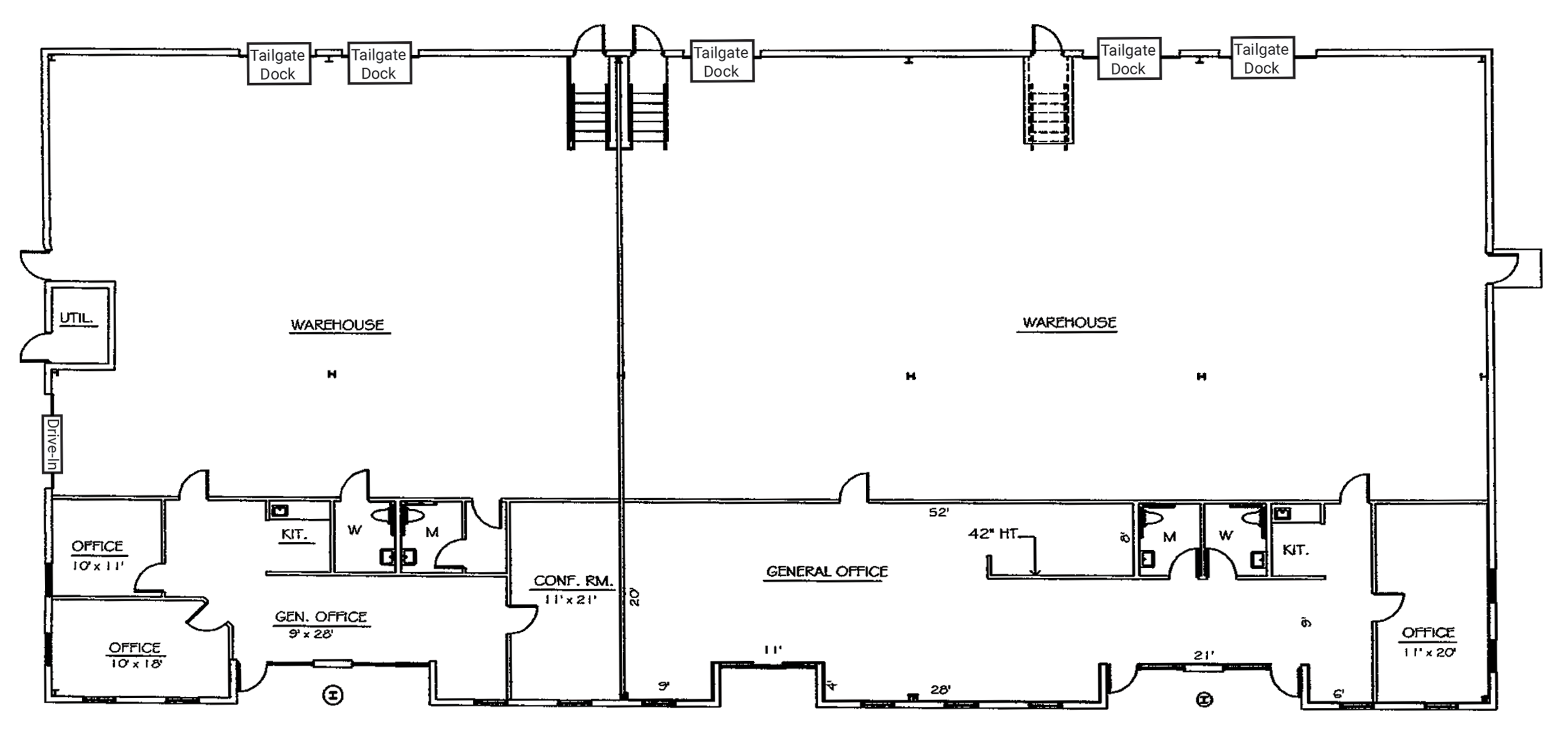
414 Bloomfield Drive is a 10,500 SF Building with five tailgate docks and one drive-in door. Bloomfield Business Park is a master-planned 168,000 square foot, 16 building multi-tenant flex/warehouse business park located in West Berlin, NJ that is adjacent and accessible via direct private access off of New Jersey Highway Route 73. Bloomfield, as it is known locally, is only minutes from NJ Turnpike, I-295, Route 30, Route 38, Route 70, and Philadelphia. The Park is well-located and well-manicured with excellent accessibility for consumers, retail locations, and major roadways, flexible and contiguous rental unit structures, and professional management with over fifty years of expertise.
Features
- Units from 2,100 Sq. Ft.
- Tailgate and Drive-In Loading
- 15’ Clear Ceilings
- 3-Phase Power
- Offices-to-Suit
- Public Water and Sewer
- Natural Gas Heating
- Separately Metered
- Flexible C-2 Commercial Zoning
- Master-Planned Business Park
- Drive-In Doors: 10’ W x 12’ H
- Tailgate Docks: 8′ W x 10′ H




