Description
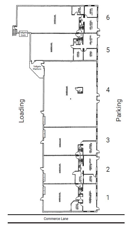
Commerce Lane Business Park includes five multi-tenant flex/warehouse buildings, well-located off New Jersey Highway Route 73, via Commerce Lane totaling 73,410 square feet of space. 424 Commerce Lane is a 14,550 SF building with three tailgate docks and four drive-in doors, located only minutes from NJ Turnpike, I-295, Route 30, Route 38, Route 70, and Philadelphia.
Features
- Units from 2,100 Sq. Ft.
- Tailgate and Drive-In Loading
- 15’ Clear Ceilings
- 3-Phase Power
- Offices-to-Suit
- Natural Gas Heating
- Separately Metered
- Flexible C-2 Commercial Zoning
- Drive-In Doors: 10’ W x 10’ H
- Unit 4, Drive-in Door: 10’ W x 12’ H
- Tailgate Docks: 8’ W x 10’ H



